Thiết kế phòng thử nghiệm cho thời kỳ hậu Covid-19
TNNN - Mục tiêu bao trùm của thiết kế phòng thí nghiệm luôn là sự tích hợp của nhân viên phòng thí nghiệm với thiết bị và vật liệu nguy hiểm. Đại dịch COVID-19 đã mang đến một yếu tố mới cho thiết kế phòng thí nghiệm — cách bảo vệ nhân viên khỏi các bệnh truyền nhiễm độc hại.
Nhu cầu phát triển thiết kế phòng thí nghiệm nhằm đáp ứng với COVID-19 cần thiết hơn trong ngành khoa học đời sống so với các lĩnh vực khác vì đối với hầu hết nhân viên phòng thí nghiệm, làm việc tại nhà không phù hợp. Ví dụ: một cuộc khảo sát gần đây trên tạp chí Genome Biology đã báo cáo rằng 57% các nhà khoa học đời sống đã mất một phần công việc do hậu quả của đại dịch này. Nghiên cứu, thử nghiệm và phát triển sản phẩm đòi hỏi thiết bị, vật liệu đặc biệt và điều kiện làm việc thích hợp chỉ có thể thấy trong không gian phòng thí nghiệm.
Các chiến lược ngắn hạn để ứng phó với COVID-19
Như tất cả các nơi mà mọi người tương tác, đại dịch này buộc ngành khoa học đời sống phải điều chỉnh các hoạt động và thiết kế phòng thí nghiệm để thực hiện các hướng dẫn về cách ly xã hội và các hướng dẫn khác về sức khỏe và an toàn. Một số giải pháp mà các cơ sở đã thực hiện bao gồm làm việc theo ca cho nhân viên phòng thí nghiệm, phân công lại việc sử dụng phòng thí nghiệm và các giao thức mới tại nơi làm việc để tối ưu hóa luồng giao thông, cũng như nâng cao thiết bị bảo vệ cá nhân (PPE).
Các hoạt động khác đã yêu cầu thiết kế lại ngay lập tức để đảm bảo rằng nhân viên có thể tiếp tục làm việc trong điều kiện an toàn, thường bao gồm việc sử dụng các dải phân cách bằng kính plexiglass giữa các máy trạm và khu vực phòng thí nghiệm. Ngoài ra, một số công ty lớn đã chọn xây dựng các phòng thử nghiệm COVID-19 dạng mô-đun, đúc sẵn hoặc cố định để kiểm tra nhân viên tại chỗ.
Vệ sinh cả bên trong và bên ngoài phòng thí nghiệm vẫn là chiến lược hiệu quả nhất để phòng ngừa lây nhiễm. Nhiều tổ chức khoa học đời sống đã áp dụng các quy trình làm sạch nâng cao từ ngành khách sạn và y tế. Thiết bị phòng thí nghiệm có tần suất xử lý và tiếp xúc cao thể hiện xác suất nhiễm vi rút cao hơn, vì vậy người quản lý phòng thí nghiệm phải xác định các khu vực nguy cơ và đảm bảo khử trùng thường xuyên các khu vực này. Những khu vực này có thể bao gồm mặt bàn, tay cầm thiết bị, chốt, điều khiển, bàn di chuột, tay nắm ngăn tủ và ngăn kéo, nắp thùng, tủ ấm, dụng cụ cầm tay, máy hút siêu nhỏ và vật tư hoặc dụng cụ dùng chung, vòi nước và tay cầm bình xịt, lưng ghế và tay vịn, bút…
Trong khi các chiến lược và giải pháp này đáp ứng nhu cầu trước mắt của người lao động, những đổi mới trong thiết kế phòng thí nghiệm trong tương lai có thể cho phép các tổ chức và nhân viên duy trì hoạt động và tối ưu hóa hiệu suất của nhân viên trong trường hợp bùng phát dịch bệnh truyền nhiễm khác.
Ngay cả khi tìm ra loại vắc-xin điều trị được căn bệnh này và mọi việc trở lại bình thường, nhưng đại dịch sẽ có tác động lâu dài đến việc thiết kế các phòng thí nghiệm vì qua đại dịch thấy rõ ràng các tổ chức khoa học đời sống đã không chuẩn bị đầy đủ cho một đợt bùng phát dịch bệnh. Nhiều nhà khoa học dự đoán các đại dịch khác có thể sẽ xảy ra trong cuộc đời chúng ta, các tổ chức khoa học đời sống cần lập kế hoạch để đối phó.
Trong tương lai, thiết kế phòng thí nghiệm có thể theo các kỹ thuật từ vivaria, các phòng nghiên cứu bệnh truyền nhiễm và các phòng thí nghiệm cấp độ an toàn sinh học khác cấp cao hơn. Những loại phòng thí nghiệm này thường tận dụng định hướng một chiều với các lối đi sạch và bẩn có mục đích sử dụng riêng biệt.
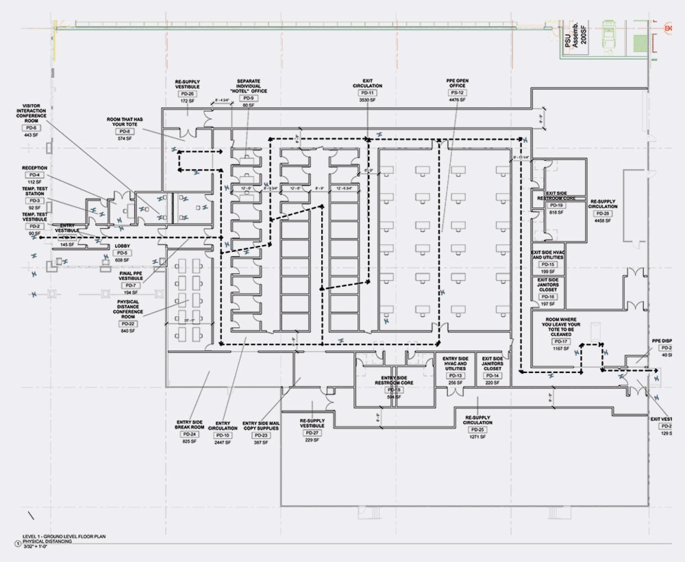
Hình 1 hiển thị cách thực hiện định hướng một chiều trong phòng thí nghiệm hoặc văn phòng. Việc lưu thông dựa trên định hướng một chiều, buộc nhân viên phải đi vào một phía của tòa nhà, đi qua các khu vực khác nhau và ra ở phía đối diện. Mô hình này cung cấp các dãy phòng hoặc phòng thí nghiệm văn phòng riêng lẻ cho phép nhân viên cách ly xã hội, phòng hội nghị cách ly xã hội cho nhân viên và phòng hội nghị hai phía cho phép các nhà cung cấp và khách đến gặp gỡ nhân viên mà không cần vào cơ sở. Mô hình này cũng kết hợp xét nghiệm bệnh truyền nhiễm khi vào cửa và bố trí nhà vệ sinh công cộng ở cả lối vào và lối ra.
Điều quan trọng cần lưu ý là thiết kế cơ sở và phòng thí nghiệm mới cũng phải tích hợp các giao thức và hoạt động nâng cao cho nhân viên và khách. Ví dụ: mô hình đã đề cập ở trên yêu cầu nhân viên không được mang theo các vật dụng cá nhân ngoài những thứ có thể đựng vừa một bộ quần áo do người sử dụng lao động cung cấp, cất giữ tại một khu vực được chỉ định, được người vệ sinh làm sạch sau khi nhân viên ra về và đặt trở lại chỗ cũ cho hôm sau nhân viên sử dụng.
Có một loạt các yếu tố khác sẽ ảnh hưởng đến tương lai của thiết kế phòng thí nghiệm, bao gồm cả hệ thống lọc và xả khí. Theo chuyên gia HVAC Vic Sibilla, PE, của NV5, nâng cấp hệ thống lọc và xả khí thường được sử dụng trong các cơ sở khoa học xử lý các tác nhân lây nhiễm hoặc hóa chất nguy hiểm có thể trở thành tiêu chuẩn. Tuy nhiên, những nâng cấp như vậy đòi hỏi chi phí đầu tư lớn cho cả phòng thí nghiệm hiện có và phòng thí nghiệm mới. Sibilla khuyên nên đánh giá các điều kiện phòng thí nghiệm hiện có và tài sản HVAC để có thể gia tăng luồng không khí trong lành bên ngoài cho tất cả các không gian.
Lý tưởng cho các cơ sở phòng thí nghiệm mới là sử dụng các hệ thống điều khiển yêu cầu 100% không khí ngoài trời và tiết kiệm năng lượng bằng cách tuần hoàn không khí ngoài giờ làm việc. Những cải tiến về công nghệ như cảm biến thiết bị không dây có thể giúp theo dõi và quản lý chất lượng không khí trong nhà theo thời gian thực, trong khi các hệ thống tòa nhà thông minh có thể tự động điều chỉnh để cải thiện hiệu quả của tòa nhà và giảm chi phí năng lượng, giảm nhu cầu nhiều kỹ sư tại chỗ. Cân nhắc bổ sung như ứng dụng ánh sáng UV-C, ion hóa hai cực để cải thiện chất lượng không khí trong nhà và nâng cấp bộ lọc (bổ sung bộ lọc thô hoặc thậm chí bộ lọc HEPA vào hệ thống ở nơi điều kiện tĩnh cho phép) đều có thể góp phần tạo ra một môi trường an toàn và lành mạnh hơn cho các nhân viên phòng thí nghiệm.
Một yếu tố quan trọng khác là quy mô cơ sở và việc sử dụng không gian. Mặc dù người ta dự đoán rằng quy mô của các phòng thí nghiệm sẽ tăng lên, nhưng vẫn chưa biết mức độ cần thêm không gian. Cần có thêm không gian để cải tiến kỹ thuật và HVAC cũng như các nguồn cung cấp bổ sung (làm sạch, PPE, v.v.); tuy nhiên, giới hạn công suất và thay đổi hoạt động cuối cùng sẽ quyết định quy mô cơ sở. Ví dụ, thực hiện theo ca cho nhân viên phòng thí nghiệm có thể giúp duy trì khoảng cách vật lý, do đó hạn chế nhu cầu thêm không gian. Các giới hạn công suất sẽ yêu cầu các phòng thí nghiệm tuân thủ nghiêm ngặt để duy trì điều kiện làm việc an toàn và các công cụ như đăng nhập wifi theo thời gian thực, huy hiệu bảo mật và cảm biến nhiệt hoặc chuyển động có thể giúp đảm bảo đáp ứng các nguyên tắc.
Cuối cùng, các phòng thí nghiệm trong tương lai sẽ nhấn mạnh đến việc vệ sinh và cần được trang bị về các quy trình làm sạch nâng cao. Do đó, có thể cần thay đổi bố cục để tăng diện tích cho các yêu cầu lưu trữ và xử lý PPE. Có thể cần bảo quản các áo khoác phòng thí nghiệm đã qua sử dụng hoặc bị bẩn như thể nguy hiểm hoặc độc hại, điều này có thể dẫn đến việc sử dụng PPE dùng một lần. Ngoài ra, cần xem xét lại toàn bộ phòng thí nghiệm để đảm bảo độ sạch cao hơn, chẳng hạn như sàn liền mạch hoặc hàn hóa học các mối nối thay vì gạch lát và gạch trần bề mặt không xốp / vinyl cho phép làm sạch sâu.
Các phương pháp thiết kế phòng thí nghiệm tốt nhất
Không có hai tổ chức khoa học đời sống nào có nhu cầu R&D giống nhau cho phòng thí nghiệm của họ. Các giải pháp thiết kế đòi hỏi sự điều chỉnh và chuyên môn hóa để đáp ứng nhu cầu riêng của người dùng, khởi đầu bằng sự hợp tác chặt chẽ giữa kiến trúc sư và người sử dụng phòng thí nghiệm. Thông qua hiểu cách người dùng tương tác với thiết bị và mục đích sử dụng, kiến trúc sư có thể phát triển một chương trình chi tiết trên cơ sở từng phòng thí nghiệm để đảm bảo rằng đủ không gian và hiệu quả. Hơn nữa, các phòng thí nghiệm nên tránh bố trí vị trí làm việc tùy chỉnh cao và thay vào đó chọn các thiết kế linh hoạt cung cấp khả năng thích ứng tối ưu theo nhu cầu sau này.
Cuối cùng, kiến trúc sư cần sớm có đủ hiểu biết về thiết bị và vật liệu nguy hiểm để đảm bảo hiệu quả, đánh giá phù hợp và tránh các thay đổi tốn kém vào phút cuối. Người quản lý phòng thí nghiệm nên cung cấp cho kiến trúc sư danh mục thiết bị toàn diện, bảng thiết bị riêng lẻ và bảng tính ma trận tiện ích của cơ sở.
Cân nhắc sử dụng các chuyên gia tư vấn bên ngoài để tiết kiệm thời gian cho người quản lý phòng thí nghiệm và đối với lĩnh vực chăm sóc sức khỏe, tuân theo sự dẫn dắt của chuyên gia tư vấn cụ thể về thiết bị. Ngoài ra, kiến trúc sư cần có kiến thức về kiểm kê vật liệu nguy hiểm và kế hoạch kinh doanh là yếu tố quan trọng để xây dựng quy trình thiết kế hiệu quả. Các nhà quản lý phòng thí nghiệm cần có nhân viên hoặc chuyên gia tư vấn tận tâm về môi trường, sức khỏe và an toàn và ghi chép đầy đủ tất cả các vật liệu nguy hiểm, bao gồm cả việc sử dụng trước đây, hiện tại và tương lai.
Đại dịch COVID-19 không lường trước được đã mang lại một số thay đổi tạm thời cho thiết kế và giao thức làm việc của các phòng thí nghiệm. Về lâu dài, các tổ chức khoa học đời sống sẽ cần cải tiến thiết kế và thiết bị của họ để đảm bảo rằng họ có thể tiếp tục hoạt động khi đối mặt với các đại dịch trong tương lai. Có thể tận dụng các chiến lược thiết kế sáng tạo và công nghệ mới để tạo ra các phòng thí nghiệm an toàn, lành mạnh và hiệu quả hơn. Việc tích hợp người sử dụng phòng thí nghiệm, thiết bị và vật liệu nguy hiểm vẫn là mục tiêu của thiết kế phòng thí nghiệm, nhưng đại dịch COVID-19 đã thay đổi cách thực hiện này. Điều quan trọng là các nhà quản lý phòng thí nghiệm phải kết hợp chặt chẽ với các kiến trúc sư và kỹ sư để đảm bảo họ phát triển các phòng thí nghiệm phù hợp với nhu cầu lâu dài của người dùng.
Douglas White, AIA, NCARB
Trương Tố Quyên dịch
Nguồn: Lab Manager- Hoa Kỳ
Thiết kế pin mới giúp giảm nguy cơ cháy nổ
JASIS 2025 – Triển lãm thiết bị khoa học và phân tích hàng đầu châu Á
Cấp thiết sửa đổi quy chuẩn kỹ thuật quốc gia cho sản phẩm sữa chế biến
Kiểm tra, xác nhận giá trị sử dụng phương pháp; ước lượng độ không đảm bảo đo lĩnh vực sinh học
Đảm bảo chất lượng kết quả thử nghiệm
Nhận thức chung ISO/IEC 17025:2017 và đánh giá nội bộ
Xác nhận giá trị sử dụng phương pháp thử trong phân tích hóa học
Triệt để tránh tình trạng “dễ làm, khó bỏ” trong nghiên cứu khoa học
Báo động: Vi nhựa xâm nhập não người với tốc độ nhanh
Hiệu ứng nhà kính và các giải pháp từ tiêu chuẩn